Transportation
Housing
Land Use
Politics
Donate
▽
Donate
About Us
Contact Us
Write for Us
Newsletters
Events
Elections Committee
Advertise with Us
Privacy Policy
• • •
About Us
Contact Us
Write for Us
Newsletters
Events
Elections Committee
Advertise with Us
Privacy Policy
Search
Sign in
Welcome! Log into your account
your username
your password
Forgot your password? Get help
Password recovery
Recover your password
your email
A password will be e-mailed to you.
The Urbanist
Transportation
Housing
Land Use
Politics
Donate
▽
Donate
About Us
Contact Us
Write for Us
Newsletters
Events
Elections Committee
Advertise with Us
Privacy Policy
• • •
About Us
Contact Us
Write for Us
Newsletters
Events
Elections Committee
Advertise with Us
Privacy Policy
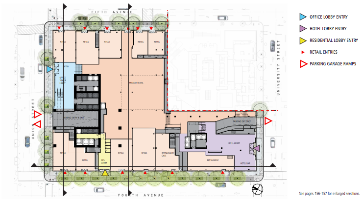
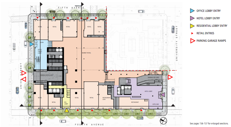
Screen Shot 2015-05-04 at 22.46.11