A 28-story tower planned for site adjacent to Denny Park would bring 268 apartments to South Lake Union, and the project could clear a hurdle on Wednesday. The West Design Review Board will give feedback–and potentially a design recommendation smoothing the way for a Master Use Permit–to Ankrom Moisan Architects at the 8pm meeting.
The design review will happen at the Queen Anne Community Center following the 6:30pm design review of a nine-story office tower at 330 Yale Ave N. It will be the 820 John St project‘s second design revew; the first early guidance guidance meeting happened in April 2017. If the board isn’t satisfied with the design, the project could be required to come back for a third review.
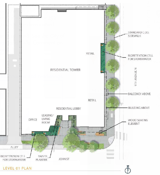
Ankrom Moisan opted to orient the tower south to Denny Park with a “phototropism concept” that maximized south-facing windows like a plant bending toward the sun. The tower has a stepped roof to maximize rooftop outdoor space. The developer actually needs a code departure since for some reason the Seattle land use code caps rooftop features at 65% coverage and this design manages 72% with its stepped design, which is encouraged in other parts of the code. (I don’t envy architects when it comes to deciphering complexities like that.)
The tower would replace surface parking and one- and two-story office buildings that currently host a glassblowing supply store and Public47 Architects. Across the alley, Greystar is planning a 28-story apartment tower of its own with 374 units on the site of Seattle Unity Church.
Other Projects Coming to Ninth Ave

Ninth Avenue is already a hive of construction activity with construction often interrupting the street’s bike lanes. Across the street, a seven-story apartment building is under construction with a 12-story office just to the north. A seven-story office at 308 9th Ave N just received its permit in January and a 25-story residential tower and a 26-story tower have cleared design review but appear to be in the process of altering plans to opt into Mandatory Housing Affordability (MHA) rezones.

The question remains whether the Seattle Department of Transportation will let all this construction activity get in the way of finishing the Ninth Avenue protected bike lanes–a crucial connection linking the Westlake protected bike lane to the Downtown network. Currently Ninth Avenue has protected bike lanes north of Mercer Street but lacks protection south of it. As a result, Ninth Avenue bike lanes often function as a rideshare loading zones–that is when they aren’t blocked by construction.

South Lake Union Is for Cars
The 28-story tower is part of the transformation of South Lake Union and Denny Triangle from warehouse district to highrise tech hub. The building, with its planned 252 parking stalls, continues the great South Lake Union tradition of overbuilding structured parking and then complaining when Mercer is a mess and Denny disastrous–at least the alliterations are catchy. Tens of thousands of parking stalls will not make the traffic congestion situation better, but we continue to build them nonetheless–a classic open access problem. We should not be building one-to-one parking ratios in the downtown core–halving that number would be a start. The Denny Triangle subway station will be just a few blocks away when Ballard Link is completed by 2035. For the time being Route 8, Route 40, RapidRide C, the Seattle Streetcar, and Route 62 all being within a five minute walk will have to suffice.
The proposed tower will more than likely serve a luxury market since it’s in the bowels of Amazonland. However, it would fund affordable rent-restricted housing via the MHA program. Moreover, it’s better to meet some of the incredible demand the booming tech industry is generating in its backyard rather than letting it spill over across the city.
Doug Trumm is publisher of The Urbanist. An Urbanist writer since 2015, he dreams of pedestrian streets, bus lanes, and a mass-timber building spree to end our housing crisis. He graduated from the Evans School of Public Policy and Governance at the University of Washington in 2019. He lives in Seattle's Fremont neighborhood and loves to explore the city by foot and by bike.











