Sometime in the 1960s, the City of Bothell adopted the motto, “Welcome to Bothell…for a day or a lifetime.” These days, the city is really making good on that motto by making room for new lifetime visitors, with a building boom brewing on the horizon thanks to an array of new housing reforms. That potential boom is poised to buck a region-wide trend of declining housing permit volumes, suggesting that stringent requirements for builders have been holding back jurisdictions across Puget Sound.
The new zoning regulations approved by the Bothell City Council in 2024 upped maximum densities permitted throughout the city, going much further than the new state baseline, which required allowing two units on every residential lot. Bothell’s zoning scales up with lot size, allowing more housing units on larger lots. In many of Bothell’s neighborhoods, using a dwelling units per acre (rather than lot) standard has this effect. Not only that, but those neighborhoods now have minimum densities in place, requiring at least 50% of the maximum density to be built in order to make efficient use of Bothell’s most valuable land.
Here’s an example: on a typical 10,000 square foot lot in the R-M2 zone seen around Bothell, property owners can now build around 12 units (depending on exact buildable area), while a multifamily development with fewer than half of that wouldn’t be allowed. With 15,000 square feet in the R-M4 zone closer to commercial districts, a property owner could build close to 30 homes, with a floor of around 15.
In 2025, Bothell went a step further and eliminated all requirements for off-street parking, at the same time as legalizing commercial storefronts throughout the city’s neighborhood zones, upending decades of restrictions on what builders could do in Bothell.

So far, those new standards are attracting notice from builders and property owners.
The leading indicator in Bothell is projects entering the pre-application stage, an advisory level where City staff work with property owners and developers to determine how best to advance a development forward. Last fall, Bothell’s Development Services Department started to get a sense that pre-applications were really taking off, a fact that was borne out in the final numbers for 2025. Where the city had seen pre-applications for just over 600 units submitted in 2024, and had averaged 580 over the previous five years, that number shot up to more than 1,000 last year.

Christian Geitz, Bothell’s Deputy Community Development Director, told the Council Tuesday that while pre-applications represent a very early stage of development, they’re a strong indicator of future activity, with 90% of projects entering that stage typically seeing permits issued. With such a substantive change to allowed density in Bothell, builders and property owners are still sussing out how exactly they could take advantage of the new zoning code.
“They’re just concepts. They’re anything from a back-of-the napkin drawing to maybe some preliminary engineering plans. A lot of this that we see is about both the developer and the applicant and the staff learning what the code, or the current code or new codes, are throwing at us,” Geitz said.
Bothell has also seen the number of land use development applications submitted increase substantially, another strong indicator of future activity. Last year, those applications shot up by 980% to their highest levels since 2021, with 529 residential units proposed within the entitlement application phase.
“It’s too early for us to say conclusively, ‘look we solved it, we figured it out. Do this, and people will build more housing.’ But all the signs are pointing in the right direction,” Bothell Mayor Mason Thompson told The Urbanist.
Thompson was first elected in 2019, winning his seat by just five votes in a race that went to a hand recount. While pro-housing councilmembers were far from the norm in Bothell in those days, voters have subsequently picked candidates who were aligned with that view, giving the city one of the strongest urbanist majorities on the Eastside.
“I’m really looking forward to these things turning into permits, and those things turning into actual projects, and actual families moving in and living in them, and seeing where it goes,” Thompson continued. “The signs are all good, and that’s really encouraging, and it’s certainly not conclusive yet, but it would be really nice to be able to point to other jurisdictions in the state and say, ‘Here is what happens if you make these policy changes.'”
The new density requirements are also having a big effect on the size of individual developments. A sampling of five different housing projects in the pipeline across Bothell showed a 45% increase in the number of units per project compared to what would have been possible under the previous development code. That includes middle housing projects jumping from four units to eight, two units to six, and five units to 12. A townhome project that would have maxed out at 18 units is now advancing as 79, and an apartment building on 120th Avenue NE now includes 322 units, compared to the 264 that would have been the max before.
The new minimum required densities are also pushing some projects to be redesigned to meet the new floor within Bothell’s denser neighborhoods.
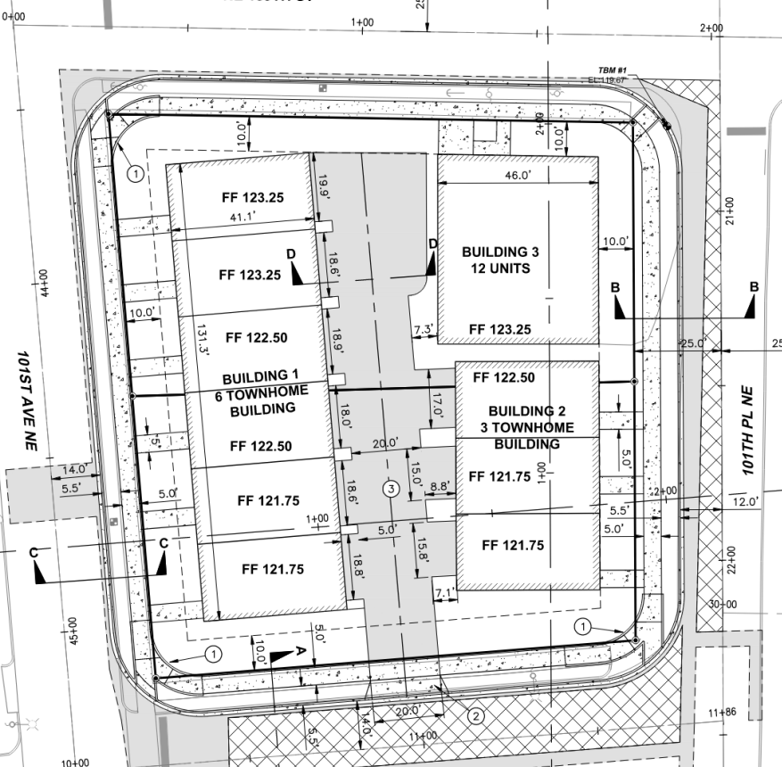
“We are seeing primarily townhomes, but increasingly through the work of our really great staff, making sure that if somebody does have a minimum density that they just couldn’t quite meet with townhome product, they’re starting to blend that,” Geitz said. One example of this is a project on 101st Avenue NE, where a set of nine townhomes will also be built with a small apartment building containing 12 units.

“I was really excited to see the 101st Avenue multifamily [development] respond to the minimum densities, because it looks like they could have fit two more town homes in there, and instead, we get 12 units, and that’s 10 more units that are homes for people that we wouldn’t have had,” Thompson said at Tuesday’s meeting. “And that makes me very happy to see.”
The 322-unit apartment building on 120th Avenue NE would be the tallest building in Bothell, taking the place of a sprawling parking lot with a hot dog stand at the center of it. That project is taking advantage of a newly approved density bonus, with the developer gaining additional height in exchange for providing 32 units of subsidized affordable housing, apartments targeted at households making 60% of King County’s median income.

So far, overall permit activity in Bothell has remained relatively steady over the past few years, with the number of new units permitted mostly down in the wake of several large apartment buildings that received their permits in 2021 and 2022. The projects on the horizon are expected to make up the next wave.

With the state’s overall economic outlook not exactly looking rosy, and the macroeconomic conditions that set the stage for housing construction not showing any signs of improvement, there’s a possibility that the units entering pre-application could ultimately evaporate. But so far there are no signs of that happening in Bothell.
“We’re not seeing any permits lapse,” Geitz said. “We do set time limits for them, but we’re as much paying attention to that as anyone, just to make sure we can plan ahead.”

Across the region, permit activity is down, a fact that is likely traced back to high national interest rates, increased costs due to tariffs, and labor shortages. Data presented last month at the Puget Sound Regional Council showed a clear downward trend in permits issued over recent quarters across the whole of King, Snohomish, Pierce, and Kitsap Counties. While the pace of units hitting the market in recent years has stayed relatively robust, without new permits getting issued that pipeline could slow to a trickle — a fact that will likely have an upward pressure on rents around the region.
But if there’s a city that could buck that larger trend, Bothell is a top contender.
“I can’t control macroeconomic factors. I can control land use in Bothell,” Thompson said. “So I think that we should be working on pulling the levers that we can, and knowing that right now isn’t the best time to be building something. But that’s not an excuse to not do everything we can, when our constituents are faced with the real types of problems that exist.”



