Shrinking station footprints could help avert light rail project delays.
Sound Transit 3, the region’s most ambitious transit expansion ever, is facing a mounting cost crisis. Project budgets have grown far beyond the original estimates, threatening to derail the entire program. With an increasingly uncertain federal funding environment, Sound Transit must find ways to dramatically reduce costs or risk leaving promised transit lines unbuilt.
Stations represent the largest share of urban rail transit’s construction costs. Elevated stations are generally about twice as expensive as surface stations, while underground stations are about four times as expensive. Reducing the costs of underground stations, therefore, has an outsized impact on overall project costs.
In 2024, New York University’s Transit Cost Project released a case study that attempted to identify why the first phase of the Second Avenue Subway extension in New York City, completed in 2017, cost several times the cost of similar projects in Europe. They found that stations were both nearly twice as long as those found in European projects and twice as long as earlier designs for the same project in the 1970s. In particular, the Transit Cost Project found that “French, Swedish, and Italian subway station digs are barely longer than the trains they intend to serve; an excess of 5% is typical, and 20% is high.”
Armed with these findings, recent reporting by Nolan Hicks of NYU’s Marron Institute found a repeat of this error in designs for the next expansion phase. The Metropolitan Transportation Authority (MTA) has since designed smaller stations for the second phase of the Second Avenue Subway, generating over $300 million in cost savings.

In light of the Transit Cost Project’s findings, this article will examine all of Sound Transit’s underground light rail stations, both already built and planned in Sound Transit 3 (ST3). Overbuilding and overdesign were already present from the construction of the Downtown Seattle Transit Tunnel (DSTT) through Sound Transit 2 (ST2). These problems have only worsened in ST3, with a dramatic increase in the size, depth, and complexity of stations compared to ST2.
There is a massive opportunity, then, to save hundreds of millions of dollars by following the MTA’s lead with right-sizing station designs. Taking advantage of these and other opportunities will require a systemic rethink of how Sound Transit designs stations and enabling state legislation.
If you support this effort, please send a letter to the Sound Transit Board.
Trend toward increasing station length, width, and depth
Station sizes have increased with each phase of expansion from Central Link’s repurposed DSTT to ST3. Stations are getting increasingly long relative to the required platform space.
- Sound Move Stations (DSTT only): 50% longer and 50’ – 60’ deep (Table 3)
- ST2 Stations: 43% longer and 75’ deep on average (Table 2)
- ST3 Stations: 79% longer and 108’ deep on average (Table 1)
- New Standard Underground Station (cut-and-cover): 45% and 90’ deep
These station length numbers are greatly in excess of the maximum 20% figure found in France, Sweden, or Italy. The implications of size on cost are even greater given mined construction is proposed for Midtown and Westlake Center. NYU’s Transit Costs Project found mined stations cost 1.5 times more on a per volume basis than cut and cover on the 2nd Avenue Extension.
Note: All station lengths are based on Environmental Impact Statement documents due to information accessibility and comparison consistency – final design length and profile may deviate from those presented here. Sound Move stations were calculated based on the Washington State Department of Natural Resources’ Engineering Geology of the Downtown Seattle Transit Project.
Table 1: Sound Transit 3 Underground Stations
| Sound Transit 2 Underground Stations | Percent Longer than Platform (380’) | Depth (feet) | Construction Method |
| West Seattle Junction | 50% | 70’ | Cut-and-cover |
| Midtown Station | 85% | 140’ | Mined |
| Westlake | 40% | 135’ | Mined |
| Denny | 190% | 100’ | Cut-and-cover |
| South Lake Union | 30% | 120’ | Cut-and-cover |
| Seattle Center | 80% | 85’ | Cut-and-cover |
| ST3 underground stations, avg. | 79% | 108’ | N/A |
| Source: Sound Transit, Table by Trevor Reed **International District Station alternatives complexity and number of competing alternatives. | |||
Gallery: Sound Transit’s ST3 Underground Station Designs
Table 2: Sound Transit 2 Underground Stations Sideview
| Sound Transit 2 Underground Stations | Percent Longer than Platform (380’) | Platform Depth (feet) | Construction Method |
| Roosevelt | 50% | 65’ | Cut-and-cover |
| U District | 40% | 75’-85’ | Cut-and-cover |
| University of Washington* | 40% | 95’ | Cut-and-cover |
| Capitol Hill | 40% | 65’ | Cut-and-cover |
| ST2 underground stations, avg. | 43% | 75’ | N/A |
| *Crossover tracks present, exact % not calculable | |||
ST2 Stations Longitudinal View
Table 3: Sound Move Underground Stations
| Central Link Stations | Percent Longer than Platform (380’) | Depth | Construction Method |
| Westlake | 50% | 50-60’ | Cut-and-cover |
| Symphony | 50% | 60’-70’ | Cut-and-cover |
| Pioneer Square | 50% | 60’-70 | Cut-and-cover |
| Beacon Hill | Information Unavailable | 160’ | Mined |
Station width and excavations to support passenger movement between the surface and platform also dramatically increased from ST2 to ST3. Each ST2 underground station features access that fits largely within the station box. If access does extend beyond the station box, it occurs close to the surface before returning to the space generated from the station box excavation. The massive ancillary spaces (dark green) are a testament to the excesses of ST3’s bloated station design.
ST2 stations fitting within the station box
ST3 dramatically expands station boxes and excavations for access compared to ST2






An international perspective
Sound Transit stations, both existing and proposed, are significantly larger than completed or under-construction stations in Paris, Milan, and Rome.
The three station profiles below are from the Paris Metro Line 14 extension that opened in June 2024. They feature minimal excavations beyond the platform length and width and efficient use of excavated space for vertical conveyance. Most station access is provided within the station box.
Paris’ Line 14 stations longitudinal view



Paris’ Line 14 stations cross-sectional view



Rome Fori Imperiali Station construction

Rome’s incredible Fori Imperiali Station is being constructed within an active archaeological site, incorporating artifacts and excavations unearthed during construction to create a ‘museum station.’ The contextual challenges faced by Italian engineers of maintaining the integrity of a 2,000-year-old archaeological site are surely equivalent to or greater than those found in Seattle. Yet, the station remains shallower, smaller and more efficient than stations proposed by Sound Transit in far simpler locations.


America is an anomaly, having largely stopped building rail transit between the Great Society metro systems of the 1960s and the recent boom in the late 90s inspired by Portland’s MAX and LA Metro. Even worse, many systems faced a generation of neglect and decline, epitomized by New York MTA’s financial crisis. Where European and Asian countries continued building, learning, and innovating across borders, America spent a generation triaging and stabilizing. Sound Transit and American transit builders overbuild and overdesign for three primary reasons: design inertia, over-interpretation of design codes, and stakeholder-driven design.
America’s inertia by design
The United States’ foremost national reference for underground construction is the New York Metro. One design feature that Sound Transit has uncritically copied from New York are full-length or oversized mezzanines. These can be necessary to accommodate transfers or massive passenger flows, but do not reflect Link’s needs or modern design practices. New York has recognized its own stations’ size issues, but still exhibit major shortcomings in designs.
This design inertia is reflected in Sound Transit’s new standard underground station configuration, which is 45% longer than the platform (image below). The standard design was drafted in response to expert feedback gathered from the agency’s Technical Advisory Group (TAG). Recommendation #5 urged Sound Transit to create optimal designs, but the oversized standard that resulted provides strong evidence for an institutional bias for large stations.

Milan’s Lines 4 and 5 provide a contrast in vertical access space efficiency compared to Sound Transit’s standard design. By utilizing vertical space efficiently, they reduce excavation and construction needs while improving user experience.
Milan Lines 4 and 5 – Deep stations with efficient access
Overinterpretation of codes
Sound Transit has encountered challenges with inconsistent code interpretation, such as when the City of Bellevue interpreted the national fire code contrary to typical practice. However, Sound Transit’s own standard interpretation is likely more rigorous than global norms. A review of fire code interpretation in Canada, for instance, found major deviations in interpretation compared to European practice. An assessment of new American transit infrastructure would likely generate similar findings. Given the intended universality of the National Fire Protection Association’s NFPA 130 standards, divergence in application makes little sense.
Stakeholder input
Sound Transit is actively working on curtailing stakeholder-driven design by introducing standardized designs. Stakeholders are any party that can exert influence over the process. It can range from employees wanting more break spaces, to what construction methods are used to how stations are integrated into a neighborhood. This often takes the form of local jurisdictions leveraging their powers, both real and perceived, to shape outcomes.
How can Sound Transit design stations more efficiently?
Sound Transit is undertaking an agency-wide realignment to address the increasing costs and delay of delivering the Sound Transit 3 (ST3) extensions. This process is already bearing fruit. Improvements in project delivery, demoed on West Seattle Link, could result in hundreds of millions in savings from design to construction. Adopting Reference Class Forecasting has massive potential to reduce overdesign and overbuilding.
Reference class forecasting (RCF)
Reference class forecasting or RCF is a project management framework that prioritizes creating a distribution of similar projects and analyzing project elements relative to each other, in order to hone project designs and more accurately anticipate costs. It won Daniel Kahneman a Nobel Prize and is broadly applied to transportation, most notably by Bent Flyvbjerg.
RCF can help agencies curtail design inertia, overinterpretation of design codes, and stakeholder-led design. A project library where drivers of cost and risk are classified creates the opportunity to address them systematically – a standard-optimized formula for delivering transit infrastructure.
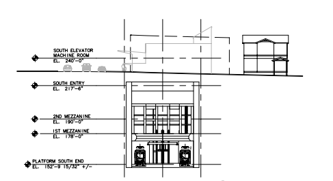
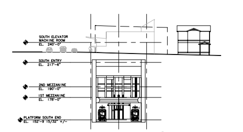
While Ballard Link does face engineering challenges, the excessive size and depth of West Seattle Junction station particularly reveals signs of scope creep and affirms the needs for RCF. The station is deeper, wider, and longer than cut-and-cover station proposals developed for Rainier Valley in the late 90’s (images below) let alone foreign peers.
Why is a station now 70 feet deep when contextually similar stations 20 years ago were 40’ (and why is the new standard cut-and-cover station design 90 feet)? Why are 34-foot wide platforms now standard when 24 feet used to suffice? What are the benefits of these larger and deeper stations? Given excavation costs increase exponentially with depth due to a change in the reinforcing necessary, any reduction in depth for proposed cut-and-cover stations would have a similar impact on reducing costs.
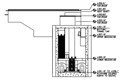
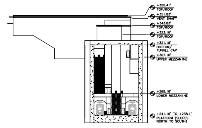
Sound Transit’s increasing station depth from Sound Move to Sound Transit 3



























