Alongside a flurry of commercial and to a lesser degree residential development, the City of Bellevue has been improving and expanding its park system to provide adequate green space for new and existing residents and visitors. The city has only been able to sustain their steady flow of park development with multiple pots of funding, chiefly among them are the Bellevue Parks and Natural Areas Levy, and Bellevue’s Parks Capital Investment Program (CIP) that draws from a mix of tax revenue — a cornerstone of which is the Real Estate Excise Tax that contributes almost 60% of Parks CIP funds.

Notably, the last renewal of Bellevue’s 20-year parks levy was on the ballot during the Great Recession. This may have been a principal cause for the levy’s contraction from a property tax of 17 cents per $1,000 assessed value to just a 12 cents per $1,000 assessed value rate in the 2008 levy. Nevertheless, since Bellevue voters renewed its park levy in 2008, the City has completed:
- Sports field improvements at Newport Hills, Wilburton, and Hidden Valley;
- Lewis Creek Picnic Area;
- Trail Improvements focusing on Coal Creek;
- Bellevue Botanical Garden Visitors Center and Ravine Garden – Funded by levy and private fundraising by the Bellevue Botanical Garden Society. Visitor Center opened in 2014;
- Bellevue Youth Theatre at Crossroads Park – A new 12,000 square feet theater funded by levy funds and fundraising by the Bellevue Youth Theater Foundation. Opened in 2015;
- Bridle Trails Neighborhood Park – The first of two Bridle Trails parks completed in 2014;
- “Complete the Circle” and Inspiration Playground at Downtown Park – Work completed in 2017 added a canal, promenade, and water features, parking consolidation, landscaping, and formal connection between the park and “Old Bellevue”;
- Surrey Downs Park Development – A new park completed in 2019;
- Meydenbauer Bay Park and Marina Projects – Scope included beach house with restrooms and showers, pedestrian pier and boat launch, a natural ravine, parking, entrance improvements, walking paths, picnic areas, pedestrian promenade, and children’s play area. Completed in 2019, and more work is planned.

What’s Next for Bellevue’s Parks
The next improvement set to complete is the Downtown Park Northeast Gateway, the latest in phased improvements to Downtown Park. Expected to be ready for use by late May 2021, this improvement will be a vital pedestrian connection of the Grand Connection’s first sequence that will connect Meydenbauer Bay Park and Eastrail. Additional work will install public art in the gateway this coming August.

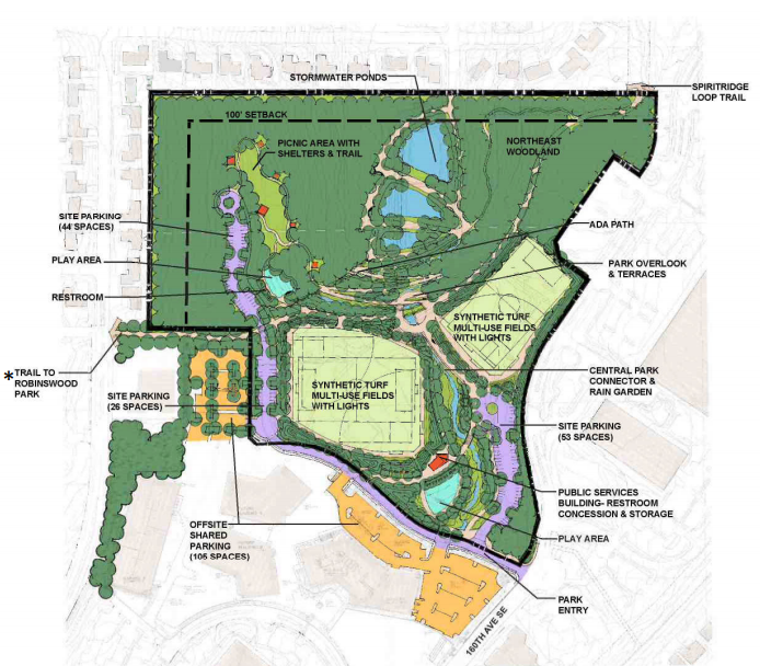
Remaining projects with confirmed timelines are the unnamed new Bridle Trails Neighborhood and Newport Hills Neighborhood Parks. Located next to a Bellevue Utility-owned wetland site, a new 1.65-arce Bridle Trails neighborhood park is expected to start construction in the spring or summer of 2022. Amenities will include play areas, a picnic shelter, benches, picnic tables, and loop trail that surrounds a large grass area. The Newport Hills Neighborhood Park will complete first with construction to start this summer. The preferred plan for the 13.7-acre park includes an off-leash dog area, trails, and open play area. Both parcels were acquired by the City with 2008 levy dollars.
When those projects are complete, the only levy promises left are the Bellevue Airfield Park and Lake Sammamish Neighborhood Park. While no activity has begun for the Lake Sammamish Neighborhood Park that is being projected as a post 2025 commitment, the Bellevue Airfield Park has actually had its site analysis and initial schematic design done for a while now. Airfield park work is on-hold, as it is being considered as a site for a new Aquatics Center. Bellevue has been conducting an Aquatics Feasibility Study to explore alternatives for a new facility, the latest update found that the Airfield site would have the greatest environmental remediation cost. That’s the case because the site was a landfill from 1951 to 1964, and then an airfield until 1983.

Long term parks projects and funding
The next plan update to help guide Bellevue parks development is underway with the work ongoing with the Parks and Community Services 2021-2027 Capital Investment Program Plan. The Bellevue Park and Community Services Board submitted their priorities to the Mayor and City Councilmembers in 2020. Much of what the board proposed include commitments made in the 2008 levy, but it also included additional funds from the Meydenbauer Bay Park Planning and Design, property acquisition in underserved neighborhoods like BelRed, Downtown, and Eastgate, and a focus on the BelRed Subarea plan’s park components.
In 2028, Bellevue will have an opportunity to renew its park levy. As mentioned early, the last renewal shrunk the levy by nearly 30%, seemingly in reaction to the Great Recession. In 2028, the City’s leaders should try to restore or surpass pre-2008 levy property tax rates. Especially if the City wants to realize the opulence of their Grand Connection vision, a stronger levy would be needed to guarantee the timely completion of a connection that grand.

Last year, Brandon was critical of the Freeway Lid portion of the Grand Connection. Zuo was underwhelmed by the small footprint and “the two giant freeway ramps shoved through the lid’s southern end [making] more than a quarter of the lid … barely usable”. They proposed a much larger lid over I-405. This concern amplifies the need for Bellevue to embrace greater funding for its parks system to create truly great public spaces.
Bellevue embraced their “City in a Park” moniker in its latest City Council Vision. To live up to that title, the City should be expected to create and fund the spaces to bring great and sufficient greenspace to every one of its neighborhoods. Especially if you live in Bellevue, let the city government know you support the Parks and Community Services department.



