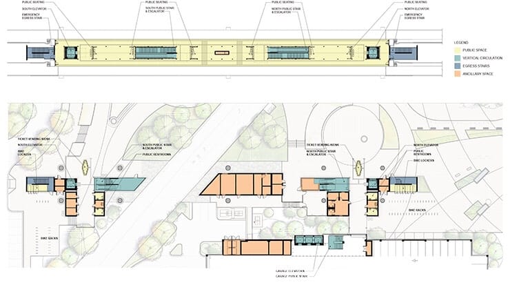
Sound Transit announced today that the Lynnwood Link light rail extension will open August 30, bringing four more 1 Line stations online: South Shoreline, North Shoreline, Mountlake Terrace, and Lynnwood City Center. An additional in-fill station at N 130th Street in Seattle (eventually to be accompanied by a zoning overhaul to grow a neighborhood around it) will open by 2026.
Compared to some other local megaprojects, the 8.5-mile Lynnwood Link extension is relatively on time. Regional voters approved the extension as part of the Sound Transit 2 (ST2) ballot measure in 2008. In 2017, Sound Transit announced a delay and cost escalation that pushed the project back from 2023 to 2024. Through tumultuous times that included a global pandemic, a concrete workers strike, and an anti-transit Trump administration, the agency has been able to keep to that revised schedule in the seven years since.
“Today’s announcement is the culmination of years of commitment and hard work on the part of Sound Transit’s project team, our contractors, and the construction workers,” said Sound Transit CEO Goran Sparrman. “They deserve our thanks for maintaining their focus on this project despite the COVID pandemic and the months-long concrete strike. I also want to thank our partners at King County and Community Transit for their ongoing collaboration in ensuring that we will have additional train capacity and transit options for riders when the Lynnwood extension opens.”
Trump officials appeared to delay a $1.17 billion federal grant for the $3.1 billion project, but ultimately authorized it, allowing the project to break ground. Additional grants, including a $250 million award from the Biden administration, brought federal support to around $2 billion. “The U.S. Department of Transportation’s Build America Bureau executed a $658 million low-interest loan supporting the project, including new light rail vehicles and support facilities,” the agency noted.
Service planning ballet
Lynnwood Link being relatively on time has allowed it to leapfrog the full opening of East Link (2 Line), which has upset Sound Transit’s operational plans. East Link will open in an abbreviated Eastside-only form on April 27, but the agency does not expect 2 Line to cross Lake Washington to Seattle (and on to Lynnwood) until 2025 due to the need to address extensive construction defects in the I-90 segment. That leaves a new maintenance base in Bellevue inaccessible from the 1 Line, which means Sound Transit isn’t launching Lynnwood Link with as many trains as it hoped.


Initially, Sound Transit warned this could mean severe crowding on the 1 Line, but the agency was able to adapt its plan to squeeze some additional frequency. Among the tweaks that made it possible was storing some additional trains (36 vehicles to be exact) at elevated stations to supplement capacity of its SoDo train base.
With extra vehicles on hand, Sound Transit is improving scheduled frequencies to every eight minutes during weekday peak hours using four-car trains. Last fall, the agency had forecast service levels closer to every ten minutes during weekday peak hours with some trips only having three-car trains. The three-car trains were expected to contribute to crowding issues, considering the demand being added to the system with the four Lynnwood Link stations. Once fully provisioned, Sound Transit aims to have trains arriving at Lynnwood Link stations every six minutes or better during peak hours, but the agency may have underestimated how many trains it needs to achieve desired frequencies as the system expands.
Sound Transit projects that Lynnwood Link will add 47,000 to 55,000 daily riders to the system by 2026, although that projection was made before the pandemic sapped some regional ridership momentum. On the existing 1 Line, average weekday boardings peaked around 90,000 in July 2023, a record-setting transit month, and averages have generally hovered around 80,000 daily riders since — even as the agency carried out some disruptive maintenance projects in the late summer and winter. Lynnwood Link will be a significant ridership boost, potentially exceeding a 50% gain if projections are met.
This fall King County Metro will also restructure its bus network to better connect with light rail, as will Community Transit, which already got the ball rolling by launching the Swift Orange Line, a bus rapid transit line from Edmonds College to McCollum Park intersecting with two Link stations on the way, allowing it to be a light rail feeder. Sound Transit had planned to curtail its express bus network in the area, but ultimately decide to keep some express buses around to help provide extra capacity to compensate while Lynnwood Link frequencies are not at full strength.
Sound Transit noted that the fall service change will happen a bit earlier than usual to pair with the light rail opening: “Community Transit and King County Metro have agreed to revise the date for bus service upgrades and improvements originally planned to take effect August 31. Bus changes will instead take place September 14, allowing a smooth launch of extended 1 Line service before bus routing changes occur.”
Coinciding with the opening of the Lynnwood Link Extension, fares on the Link 1 and 2 Lines will go to a flat $3 fare. For many current riders, this will be a fare increase and for a much smaller share of riders a fare decrease. But Sound Transit officials valued simplicity over an equitable fare structure, and will functionally offer long-distance riders from places like Snohomish County a much bigger subsidy than urban riders — the latter of which who make up the bulk of ridership.
Game-changer for North Sound
Snohomish County Executive Dave Somers (who is also Sound Transit Board Vice Chair) called arrival of light rail a “game-changer” for his county, as it connects the cities of Shoreline, Mountlake Terrace, and Lynnwood with the larger network

“The opening of light rail to Lynnwood will be transformational for Snohomish County,” Executive Somers said in a statement. “Light rail is essential for supporting our projected growth in the years to come, allowing residents to travel reliably, safely, and efficiently to downtown Seattle, Sea-Tac Airport, and beyond without having to contend with highway traffic. This is a game-changer. I’m looking forward to the next phase in Link’s growth in Snohomish County, as we work toward extending service to Everett.”
All three cities are essentially bedroom communities with strip malls in place of main streets but all three have focused their commercial and residential growth near their light rail stations. This should lead them to develop true urban cores to go with the standard issue suburbia.
Already Lynnwood has added more than 3,000 homes in its “City Center” neighborhood, leading its city council to grow pensive and contemplate pumping the brakes — although a majority ultimately greenlit additional growth. “The Link light rail extending into Lynnwood heralds the start of a new era for our city and the rest of Snohomish County,” said Sound Transit Boardmember and Lynnwood Mayor Christine Frizzell in a statement.
Riders will get to see how closely the final project matches the project renderings from the planning process (see below).












Meanwhile, Mountlake Terrace opted to allow 12-story towers near its light rail station, though no developers have taken them up on the full height allowance yet. Instead, a large eight-story apartment complex with 425 homes is in the works next door to the station.









Shoreline has seen a big uptick in apartment production, but much of it has been in the Aurora Avenue corridor near RapidRide E Line bus service rather than light rail. But the zoning is there to support significant growth near Link.









In fact, Shoreline was much quicker than Seattle to rezone around the Shoreline South station, which borders North Seattle just across NE 145th Street.












2024 is a big year for transit across the Puget Sound region, and riders have much to look forward to.



