Three years after the opening of Northgate’s Link light rail station, Simon Properties broke ground on the first residential development within their Northgate Mall property, which they have renamed “Northgate Station.” The mall operator and developer’s July 11th groundbreaking of 234 new homes took place as construction completions are peaking in the Seattle area.
Since we last covered development in Northgate, the neighborhood’s small mixed-use core has nearly doubled in size, new construction has broken ground, and additional projects have been proposed. While Northgate may still seem like a mall-oriented sea of parking from light rail station, farther afield a dramatic transformation is underway.
Much of the construction activity in Northgate has happened just across the street from Simon’s mall site, on the superblock southeast of the intersection of NE Northgate Way and 5th Avenue NE. New multifamily housing has gradually filled in the block from north to south. Checking back in on the progress of this block on the remains of a dead strip mall, The Baldwyn, bringing 235 homes at 10712 5th Ave NE, has opened this year, with the 409-unit Modera Northgate at 10631 8th Ave NE nearing completion.

With this block of Northgate having much of its capacity for new development exhausted, construction and planning is taking off all around the rest of the neighborhood. In 2022, Northaven West opened its 82 senior housing units at 545 NE 112th Street. Opening this fall is the 295-unit OWL at 11201 Roosevelt Way NE. Also under construction are two affordable housing projects with childcare centers, the 89-unit Nook at Northaven at 11057 8th Ave NE and 235-unit “Bridge Northgate” affordable housing complex at the Northgate park and ride, which is a partnership between Bridge Housing and Community Roots Housing.


Simon begins construction on housing
Meanwhile, the new “Northgate Station” project is the first residential element in Simon’s grand mall redevelopment plan. Since the opening of the Northgate Link extension, Simon has so far only completed a hockey center and a park. In 2023, they began construction on a hotel, slated to be a 167-room Residence Inn on the western section of their future urban campus.
The project, which Simon refers to as “Northgate Station Residential Phase One” or M2, will be a 234-unit apartment building with 569 parking spaces and over 20,000 square feet of retail space.
“The new residential development marks the next chapter in executing our vision to reimagine the Northgate Station district as a lively and walkable community that meets the needs and wants of today’s resident in the greater Seattle area,” Simon’s vice president Patrick Peterman said in a statement. “When it is finished, people will be able to live, work, play, stay and shop at Northgate Station.”

Simon noted that the pace of their development will happen building by building, so Phase Two will just be M2’s neighbor M3, which will connect with M2 and share its parking lot. M3 will have 186 units and additional retail space as well.
Simon’s slower pace of construction is aimed at following market trends, so as the office and housing markets fluctuate over time their plans for the mall redevelopment may shift. Previously, The Urbanist reported the mall’s redevelopment would include two more residential buildings, one each planned for the north and south of M2 and M3. M1 and M4, if unchanged, would house more than 500 units together and add live/work units to the campus.

Past planning also indicated the potential for office buildings on the west side of the campus and maybe another hotel, however those are probably the farthest out on Simon’s apparent seven-to-10-year timeline. Office demand has dipped in the work-from-home era. Plus, a Seattle Comprehensive Plan update expected in the next year or so could include zoning overhauls for urban centers like Northgate. Simon may have more flexibility to further expand its vision for Northgate Station.
The redevelopment of Northgate Mall is playing a key role in the transformation of the neighborhood as a whole. The site is located in the middle of separate urban outposts in the neighborhood. It will knit together the urban fabric of the neighborhood as the main link between Northgate’s light rail station, Thornton Place, and the growing urban core of the neighborhood east of 5th Ave NE into a cohesive urban core.
The redevelopment is breaking up an old parking-lot-riddled mall superblock into a more walkable neighborhood, while linking up the various urban destinations of Northgate. One such improvement is a pedestrian pathway into the heart of the mall area that will be built during the construction of M2, effectively extending NE 105th Street for people walking, rolling, and biking.
What’s next for Northgate
The connective tissue that the Northgate mall redevelopment is building becomes more consequential as new projects trickle into the pipeline. One such project has been Victory Northgate, an apartment building with 182 affordable homes, 77 parking stalls, and a 6,800 square feet daycare facility at 1000 NE Northgate Way. The developer secured financing for the project earlier this month. The project’s capital stack includes federal low-income housing tax credits, private financing, and a $25.2 million soft loan from the City of Seattle.
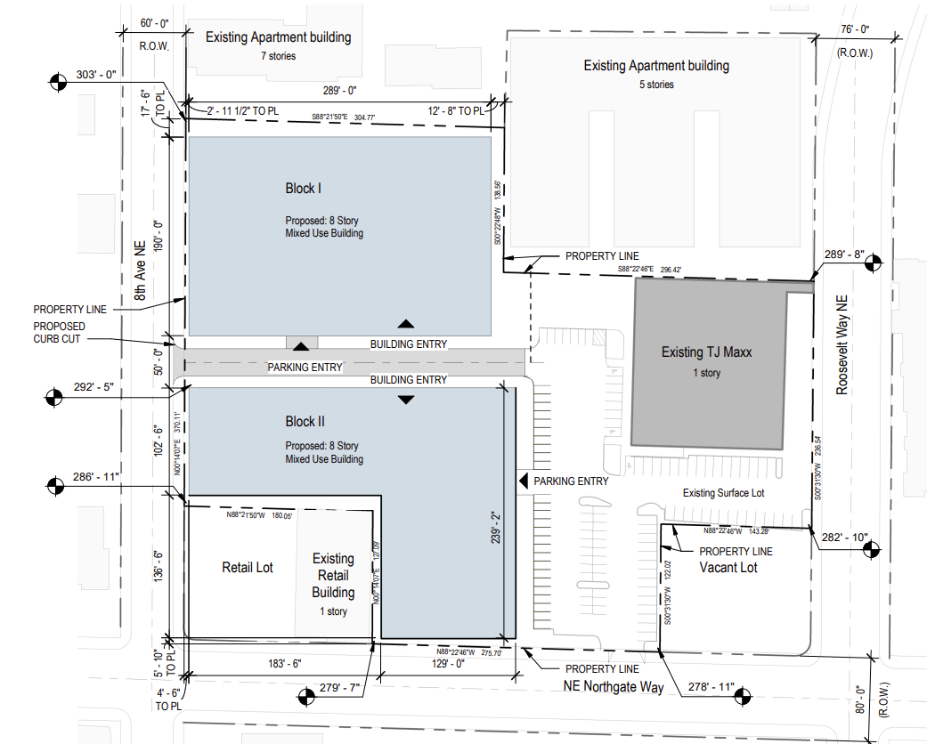
Despite high interest rates, a new mall redevelopment has emerged. In 2023, the permitting process began for two eight-story mixed-use buildings at 830 NE Northgate Way. In a pre-submittal meeting, the developer discussed the potential for 730 housing units, approximately 600 parking spots, and around 24,000 square feet of commercial space between the proposed buildings.

In 2022, The Urbanist reported on the pre-application of a potential high-rise project at 300 NE 97th St. Permitting on that project has gone silent since. The developer had proposed 158 homes above 63,000 square feet of commercial space. Another quiet project that we’ve covered is Northgate Commons, an undertaking by Seattle Housing Authority and City of Seattle to redevelop an 8.5-acre site just north of the mall redevelopment into a mixed-income community with between 1,200 and 1,400 homes.


The other major development site is the County-owned park-and-ride lot across from the light rail station, where phase one of the County’s redevelopment plan, dubbed Bridge Northgate, is underway on the northeast corner of the lot. Metro announced it would not break ground on the second phase of the development until after the Lynnwood Link extension opens and drops parking demand at Northgate. However, Lynnwood Link will open in a month with no apparent headway on a development proposal for the larger remaining portion of the site.
Beyond these projects, a comparison of Northgate’s zoning map and existing condition shows some zoned capacity remaining. Without a rezone, that capacity will continue to deplete. Such an update may come with the upcoming comprehensive plan update and Regional Center (the rebranded urban village/center designation for Northgate) Subarea Planning that may see adoption around 2025.

For now, we can bask in a changed neighborhood where nearly 2,000 units either have been built in the past half decade or are under construction. Suburban malls are being replaced with dense housing and surface parking is being greatly reduced. When including projects in a tentative planning and permitting stage, this number shoots up to over 5,000. Although with interest rates suppressing development, the true pace of Northgate’s urban transformation is hazy, and Simon seems determined to follow a gradual market-based buildout of its mall redevelopment.


