The stalling out of major downtown redevelopment offers a chance to finetune goals.
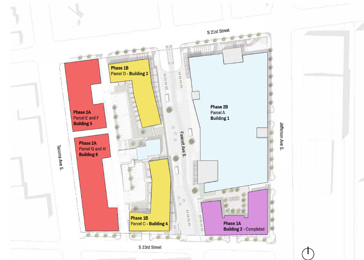
The Tacoma Town Center, a $300-million project that is to be developed on a 6.4-acre parcel of land near the University of Washington Tacoma campus, is stalled once again. The reasons are typical: Developers have not been able to secure financing, which has led to delays, expired permits, liens, and lawsuits. The future of the site and, by proxy, of downtown Tacoma is uncertain.
As an Opportunity Zone project, the Tacoma Town Center invites outside investment that may well benefit the City as we strive to make the city into one that is livable, accessible, and thriving, in exchange for deferred and lower capital gains taxes for investors. Over three phases, the Tacoma Town Center was to bring a mix of housing, retail, and public space to downtown Tacoma, three much needed elements for a part of town that, despite its location, does not always function as a downtown. In all, plans had called for six buildings with 537 market-rate and 98 rent-restricted apartments (via the Multifamily Tax Exemption program.)
With a name like “Tacoma Town Center” one wonders whether this project can catalyze a downtown transformation that would make the experience of this part of Tacoma more like what we mean and want when we say “downtown.” Because Tacoma does not really offer anything like a town center yet; its downtown comprises everything from the Dome District to Old City Hall, an L-shaped geography whose most prominent feature is Pacific Avenue, a wide road that only resembles a walkable and comfortable public experience in certain sections and at certain times of the day.

Of course, the moniker “Tacoma Town Center” is branding. Not unlike other mixed-use developments around the U.S. whose names include “Commons,” “Village,” or Plaza,” we should not be so naive as to think that the name “Tacoma Town Center” is actually indicative of a desire to make those spaces operate anything like the experience this nomenclature is rooted in (see University Village in Seattle or Bridgeport Village outside of Portland).
But in Tacoma, and with this second “pause” on the project, maybe it could be.
From a developer’s perspective — and often from the City’s and business sector’s, too — the purpose of development is profit. Profit in the immediate sense, and profit in the long-term sense by virtue of how that development will drive people to spend their money as residents and patrons. (Literally, as most of these developments imagine and plan for people driving there to consume and transact; the Tacoma Town Center plans for 1,000 parking stalls.)

Reading through media coverage of the Tacoma Town Center’s ongoing delays and problems a constant refrain emerges about the need and value of the project: more development and further investment. Beyond profit, what can an actual Tacoma Town Center be and do for our city?
Traditionally, town centers refer to central sites in villages and towns at which commercial — retail and shopping — activity was centralized. In the United Kingdom, where this urban form is most seen, a town centre often is the geographic center or core of a settlement. In Canada, it can also be this but might also be the commercial core of a particular district or neighborhood. In either case, a town centre is more than a place to shop and transact; it is also where you will find the most connections to other parts of the city and region via public transit, and the most optimal public spaces, i.e., sites where people can meet, congregate, and loiter at ease and without having to buy anything in exchange for permission to be there.

True town centers are where you find other elements of public infrastructure such as libraries and museums. It is not uncommon to find statues and noteworthy architecture at town centers, all elements that celebrate and elevate important leaders and communities. In this way, a town center becomes more than a place that exists for profit; it is also a central site which supports a city’s cultural vitality and where people can go to have many of their needs met.
Tacoma needs such a site. While downtown Tacoma does offer museums, interesting architecture, places to shop, a plaza, and connections to regional transit at the Tacoma Dome station, most of these amenities are disconnected. They are far apart from each other and someone on foot or on a bicycle is likely to experience obstacles getting to and from them. We need a town center, but not only in name.
It is true that financial and political realities of development are incongruous with the type of development that we need and many want. But it does not have to be this way.
See Portland’s Pioneer Square, a central part of the city that is anchored by retail but which is also an activated public space that is connected to all other parts of the city. While cars do run through this part of downtown, they are not given primacy. Courthouse Square, which is cordoned off on all sides by bus and light rail lines, may well be anchored by retail, but is also and primarily activated throughout the year by seasonal offerings: outdoor concerts in the summer and the city’s Christmas tree and a skating rink in the winter.
(Other possible ways in which downtowns – city centers – are represented are in Boise and Spokane.)
As we re-imagine a Tacoma Town Center we might look to Seattle’s Pioneer Square as a model. We should not be satisfied with proposals for what amounts to a suburban outdoor mall whose only relation to the thriving and accessible multi-use space we want is its branding.
The best and most meaningful step a developer could take towards creating an actually activated and thriving town center would be to exclude most private vehicles; instead, our current vision for a “town center” will accommodate at least 1,000 more. That is a lot of space allotted to vehicle storage, and allotting so much space to private property will do nothing to close the gaps that currently characterize the downtown experience in Tacoma. In fact, it is bound to make downtown Tacoma more disconnected and inaccessible.

And, we hear that business owners sometimes rightfully worry that people will not patronize their business if they cannot leave their cars within feet of the storefront while they shop. And we also hear residents who say they worry that they will not be able to get to where they need to be without a car, and that they won’t have a place to store their car during the many hours they do not need it.
Tacoma is at once negatively impacted by how we must continue to accommodate cars in new developments while also realizing that we need to not be doing this if we are to continue to make our city into a thriving, attractive, and accessible place to live in and to visit. This is a reality for many cities across the U.S. Changing this reality is as much about working to raise awareness of all the ways car primacy unmakes our cities as it is about supporting a shift to more equitable types of mobility.
We are in the uncomfortable phase right now, where we still need a car to close the gaps between where we are and where we need to be, and recognizing that the car we use to close these gaps is creating these and other gaps in the first place. How and what we permit with this and other future developments will either get us closer or farther away from our vision of a city that is anchored by a true town center.

This second “pause” on the Tacoma Town Center project is unfortunate, and we wish that development in our city and region was less susceptible to the well-trodden terrain that is dominated by developer financing issues, delays, and litigation. Even when the IRS seeks to facilitate development in certain areas by allowing wealthy investors to defer or pay less in taxes, the same issues arise and slow or stop development where we need it.
But perhaps there is an opportunity here to also pause and revise what we mean when we imagine a true town center for our city.
We might realize that we’ve entered into another type of opportunity zone, one in which residents of Tacoma see the value of investing time, energy, and other resources into this development. After all, we are the ones who will enjoy or deplore some of the long-term effects of development. This is an opportunity to ensure that our vision for an ambitious development in a critical part of our city aligns with the vision of our city that we have been articulating and laying out through Home in Tacoma, the city’s newly adopted tree ordinance, and our Vision Zero commitments.
It is also an opportunity to put to use some of the lessons we have learned via other capital development investments, namely Point Ruston. And it goes beyond the financial woes and timeline setbacks that roil both developments; at Point Ruston, we are coming to understand the consequences of locating significant retail and housing in a development without accounting for how people will arrive there. To the detriment of all, Point Ruston can really only be accessed by private vehicle. Topography and short-sighted planning make it so that no real connections via transit exist. We have an opportunity to do it differently this time around.
Tacoma needs a town center — that’s for sure — a central location where people, residents and visitors alike, can connect, physically and socially. A place to meet other new parents for children’s play dates. A place to catch a bus or a train to another destination, or the place where transit has brought you to catch a performance, view an exhibition, or check out a book. A place where, once you are there, you can easily walk or ride a bike to another amenity. A place where you are not worried about getting a parking ticket or worse yet, getting hit by a car.



