Long-awaited upgrades to the Seattle Monorail‘s outdated Seattle Center Station are moving forward, spurred by a $15 million federal grant for accessibility improvements approved in 2022. The station’s overhaul is a critical step in bringing the station up to basic accessibility standards, but also for accommodating significant crowds of passengers before and after events.
Traffic at the station is expected to grow following a revamp of Memorial Stadium, building on the momentum of an overhauled Climate Pledge Arena and the myriad other event venues at Seattle Center that add significant demand on the 0.9-mile monorail.
The update is badly needed. Seattle Center Station remains much as it did in 1962, with only small tweaks for the modern era. The only Americans with Disabilities Act (ADA) compliant way for wheelchair users to access the station is by entering the Seattle Center Armory and using the pedestrian bridge to get to the monorail, and the station platform itself doesn’t have level boarding onto the trains.

In contrast, the Seattle Monorail’s southern terminus in downtown was completely rebuilt with the construction of Westlake Mall in the mid-1980s, and received another revamp in 2020 to better accommodate increased passenger flow, just in time for the line’s 60th anniversary.
The project’s current schedule means upgrades won’t be fully complete in time for the 2026 FIFA Men’s World Cup, which includes a planned “celebration site” at the Seattle Center Campus and some of the biggest crowds the campus has seen in decades. This fall, the City of Seattle started the process of selecting a general contractor who will oversee the finalization of design and the construction process, with construction not actually set to start until summer of 2026, according to procurement documents.
In the meantime, monorail riders will be faced with a fare increase starting in 2025 that will up the price for one trip to $4, making the short line one of the most expensive transit trips in town.

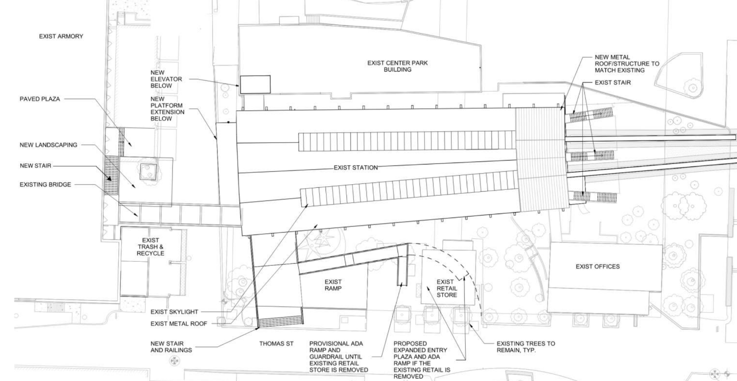
The preferred concept for Seattle Center station upgrades, developed after engaging a consultant on several different alternatives over recent months, is similar to concepts for reconfiguration examined in the past. A full rebuild of the monorail’s main entrance onto Thomas Street will remove an awkward bottleneck, with a new stairway entrance, a ramp, and an ADA-compliant ramp all providing a way to access the station.
The City of Seattle is looking at additional, longer-term changes to the Thomas Street corridor, which includes several small retail stores near the monorail entrance. Ultimately, an ADA ramp that doesn’t include any sharp turns is envisioned, but not immediately planned for implementation. The primary east-west pedestrian corridor through Seattle Center, Thomas Street, has a lot of potential that will be enhanced with better access to the monorail station.
Inside the station, an uncovered extension of the platform will create more room to accommodate crowds, and the platform itself will be realigned to allow level boarding onto the two monorail trains, one of the biggest accessibility upgrades included here.

On the north side of the station, a new elevator will provide direct access for riders heading to and from Memorial Stadium, which is set to reorient itself with a new Seattle Center-focused “front porch” — in strong contrast with today when most visitors enter off 5th Avenue N. Along the Armory building, the stairway leading up to the pedestrian bridge will be rebuilt to handle larger crowds.

So, what ideas were examined and discarded? Another alternative looked at rebuilding the pedestrian bridge, which is well below standard height, preventing Seattle Center maintenance vehicles from being able to use the Nob Hill Avenue pathway. A new stairway directly onto ground level heading north would have provided better access to Memorial Stadium. But this concept providing fewer improvements around passenger flow and came with a higher price tag.
As part of the improvement study, consultant HDR looked at another issue facing the monorail: is it better to load passengers onto trains from the center platform at Seattle Center or from the sides? With center loading, passengers can board onto either of the two trains, but the space on the center platform is more limited. After modelling passenger flow, the study concluded side-loading would mean the system could handle larger crowds, as long as there are line managers in place to tell passengers which entrance to use.

Counterintuitively, the study found that reducing train headways and increasing the number of passengers on each train is the only way that the system will be able to accommodate close to its maximum capacity of carrying 5,000 riders in a single hour. Those models assumed both trains arriving at four-minute headways, which each four-car train able to handle just under 300 passengers.
Ultimately, it will be up to Seattle Monorail Services, the private company that operates the monorail, to implement procedural changes like this. But with a potential NBA team at Climate Pledge Arena on the horizon, the City of Seattle is banking on the monorail’s people-moving capacity.

Throughout all of these upgrades, monorail service is not expected to be significantly disrupted, with construction crews working around the schedule of what’s become a vital tool to handle big Seattle Center events. If all goes according to plan, officials will be able to cut the ribbon on these upgrades by fall of 2027.



